Rozšířené hledání

  •  

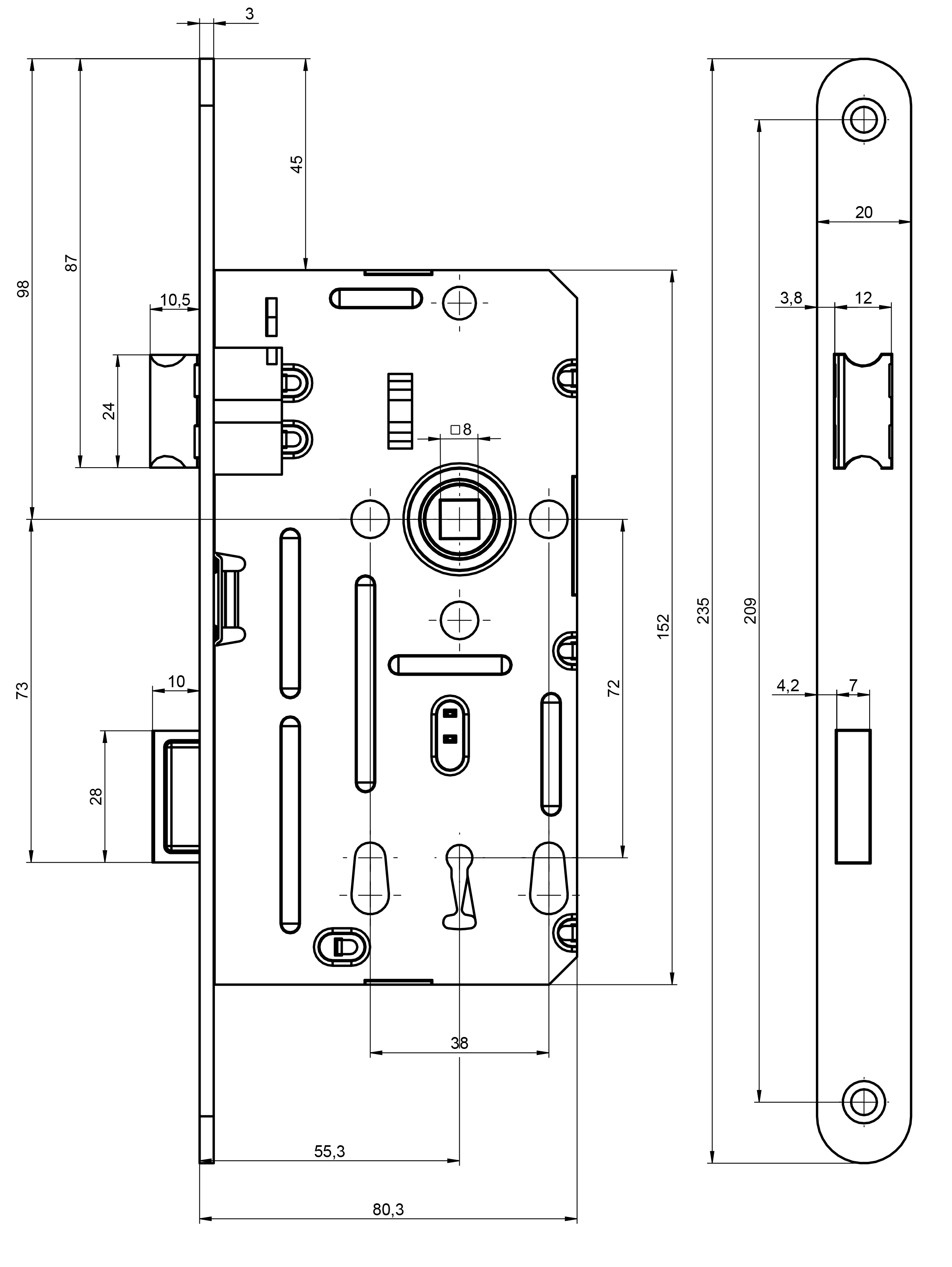
Zadlabací zámek YALE 5243/20 pravý na klíč HR

Kód produktu: NA033859
Kód dodavatele: AA001826
EAN: 8592721498393
Výrobce: ASSA ABLOY Opening Solutions CZ s.r.o.
Na objednávku
163,35 CZK s DPH / ks
135,00 CZK bez DPH
MJ: ks

Mechanický zadlabací zámek Yale 5243/20

Mechanický zadlabací zámek ovládání obyčejný klíč

  • jednozápadový
  • ovládání přes obyčejný klíč
  • zámek bez převodu (střelku nelze ovládat klíčem)
  • určeno pro jednokřídlé dveře
  • otvory v bočních deskách o průměru 8mm umožňují použití dvoudílného kování (rozetové)
  • dodáván s jedním klíčem
  • typ balení: Hromadné
  • backset: 55 mm
  • protipožární certifikace: Ne
  • body uzamčení: Jednotlivý bod (počet bodů)
  • typ dveří: Běžný profil

Odkazy k produktu

Zařazeno v kategoriích

EAN
8592721498393
Značka
ASSA ABLOY 
Rozteč, střed kliky - střed vložky
72
Osová vzdálenost - dornmass/backset
55
Celkový Zádlab
80,3 mm
Šířka čela / lišty
20
Tvar čela
Ploché
Čtyřhran
8
Zámek orientace
Pravý
Nutno určit pravý nebo levý
Ano
Pro požárně odolné dveře
Ne
Výška čela
235 mm
Tloušťka čela
3 mm
Počet klíčů
1 ks
Na vložku
Ne
Zámek na
Klíč (BB)


© Servisní partner FAB Brno, Novelo 91 s.r.o.